Locales comerciales y bodegas en Santiago | Arriendo bodega nueva c/of de 338 m2 en P. Industrial
UF71,00
Ref.: 9213458
- Precio
- UF71,00
- Baños
- 3
- Estacionamientos
- 2
- M² totales
- 338
Publicado
26/10/2025
Ubicación
Santiago
Price/m² of construction
UF0,21
Price/m² of land
UF0,21
m²
338
Descripción
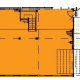
Arriendo bodega NUEVA de 338 m2 en Parque Industrial, sector Miraflores. La bodega tiene 277,77 m2 de planta, 10,5 m de frente por 26,35 m de fondo. Además, tiene 60,38 m2 de oficina en planta libre y dos baños ubicados en el tercer nivel. Se puede habilitar un segundo piso de oficinas y un camarín en el primer piso.
Valor del arriendo UF 71 más IVA. Valor de los GGCC $338.000.
El Parque Industrial se encuentra ubicado en calle Miraflores, muy cercano a la Autopista Américo Vespucio, Costanera Norte y Ruta 68. Esto le otorga una excelente conectividad con toda el Area Metropolitana.
Características de la Bodega:
Acceso peatonal con puerta vidriada.
Cortina Metálica a piso para acceso de carga.
Altura 9 m.
División de la bodega de bloque de concreto y RF 120
Red Húmeda
Iluminación Led en bodega y oficina.
Energía trifásica de 25 A.
2 estacionamientos.
Servicios de Administración:
Cerco eléctrico perimetral.
Muro perimetral con contención.
Circuito cerrado de monitoreo.
Equipo de seguridad.
Accesos controlados 24/7.
Púas anti-alunizaje.
Mantención y aseo de áreas comunes.
Amplias calles de circulación.
Estacionamiento de visitas.
Control de plagas perimetral.
Valor del arriendo UF 71 más IVA. Valor de los GGCC $338.000.
El Parque Industrial se encuentra ubicado en calle Miraflores, muy cercano a la Autopista Américo Vespucio, Costanera Norte y Ruta 68. Esto le otorga una excelente conectividad con toda el Area Metropolitana.
Características de la Bodega:
Acceso peatonal con puerta vidriada.
Cortina Metálica a piso para acceso de carga.
Altura 9 m.
División de la bodega de bloque de concreto y RF 120
Red Húmeda
Iluminación Led en bodega y oficina.
Energía trifásica de 25 A.
2 estacionamientos.
Servicios de Administración:
Cerco eléctrico perimetral.
Muro perimetral con contención.
Circuito cerrado de monitoreo.
Equipo de seguridad.
Accesos controlados 24/7.
Púas anti-alunizaje.
Mantención y aseo de áreas comunes.
Amplias calles de circulación.
Estacionamiento de visitas.
Control de plagas perimetral.
Beneficios
Seguridad 24 Horas
Recepción